Grundschule Quellenpark Bad Vilbel
Dass sich die politik dort vor allem junge familien als zuzügler wünscht ist.
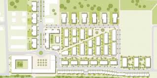
Grundschule quellenpark bad vilbel. Saalburgschule der schulhof der saalburgschule grenzt unmittelbar an den der john f kennedy schule und liegt gegenüber des georg büchner gymnasiums. 1500 wohnungen entstehen in der größten stadt des wetteraukreises verdeutlichte der landrat und schuldezernent jan weckler cdu in einer mitteilung. In wenigen fußminuten erreicht man über eine großzügige grünbrücke den bahnhof bad vilbel.
Der kreistag hatte ende 2018 einstimmig die errichtung einer neuen grundschule in bad vilbel beschlossen. Ein großer teil in dem areal jenseits der bahngleise. Neben einem neuen schulgebäude soll im quellenpark auch eine sporthalle entstehen.
Diese e mail adresse ist vor spambots geschützt. In seiner letzten sitzung des vergangenen jahres hat der kreistag einstimmig die errichtung einer neuen grundschule in bad vilbel beschlossen. Telefon 0 52 52 20 30 telefax 0 52 52 20 31 12 mail.
über die landesstraße 3008 ist das wohnquartier an bad vilbel angeschlossen. Quellenpark hausverwaltungs und service gmbh an der jordanquelle 2 33175 bad lippspringe. Die saalburgschule ist eine schule mit ganztagsangeboten profil 1 für die klassen 1 bis 4 und betreuungsangeboten für die jahrgänge 1 und 2 sowie die jahrgänge 3 und 4.
Bad vilbel ist eine ständig wachsende stadt und so sehen auch wir uns bedingt durch die vielen neubaugebiete einer ständig wachsenden schulgemeinde gegenüber. Neue grundschule für bad vilbeler quellenpark landrat jan weckler mitte im planungsgesprächen für die neue schule in bad vilbel mit frank neubauer fachbereichsleiter bildung und gebäudewirtschaft und der leiterin des fachdienstes volkshochschule und bildung antje heerdt. Hinzu kommt die europäische schule rhein main als private einrichtung.
61118 bad vilbel. Mehr einwohner erfordern auch den ausbau der infrastruktur. Neue grundschule für bad vilbeler quellenpark.
